esball(中国区)官方网站

天津esball装饰 天津esball装饰

18602295664
当前位置:首页 » 装修中心 » 装修案例
主案设计师
金振东
设计师:金振东

7年设计经验,擅长现代风格,北欧风格,轻奢风格等。设计来源于生活 服务于生活 用心观察生活,感悟人生真谛,让设计与生活互动

最新活动
端午遇上618,双重优惠双重享
端午遇上618,双重优惠双重享

esball装饰618优惠活动,半包施工,主材大包均有优惠,详询电话18602295664

距结束仅剩:
0000
二手房整装满额送全屋拆砸
二手房整装满额送全屋拆砸

二手房全屋重装,满额即赠送全屋拆砸。 详询:18602295664

距结束仅剩:
0000
装修人士必看的5.1装修省钱指南,错过还要再等一年!
装修人士必看的5.1装修省钱指南,错过还要再等一年!

五一钜惠,周末狂欢

距结束仅剩:
0000

装修无忧 0元报价 上市公司价格透明

* 免费电话申请:18602295664
最新装修案例
第博雅园151㎡现代简约风格装修实景图!
第博雅园151㎡现代简约风格装修实景图!

小区:第博雅园面积:151㎡冯帆

龙湖天璞71㎡现代简约风格装修实景图!
龙湖天璞71㎡现代简约风格装修实景图!

小区:龙湖天璞面积:71㎡刘雪苗

融侨观澜137㎡现代简约风格装修实景图!
融侨观澜137㎡现代简约风格装修实景图!

小区:融侨观澜面积:137㎡王笛

九和府93㎡混搭风格装修案例
九和府93㎡混搭风格装修案例 九和府93㎡混搭风格装修案例 九和府93㎡混搭风格装修案例 九和府93㎡混搭风格装修案例

设计说明

 本案客厅墨绿的丝绒沙发焦糖红的窗帘,颜色上的撞击,材质上的统一,吹来了一阵柔和的复古风。瓦橙色的餐厅墙,和客厅的颜色形成巨大的反差,灯光照在桌面,浓烈的就餐氛围扑面而来,金属灯具、藤编椅,依旧充满复古的腔调。

小区名称:九和府
面积:93㎡
设计师:金振东
设计说明:本案客厅墨绿的丝绒沙发焦糖红的窗帘,颜色上的撞击,材质上的统一,吹来了一阵柔和的复古风。瓦橙色的餐厅墙,和客厅的颜色形成巨大的反差,灯光照在桌面,浓烈的就餐氛围扑面而来,金属灯具、藤编椅,依旧充满复古的腔调。
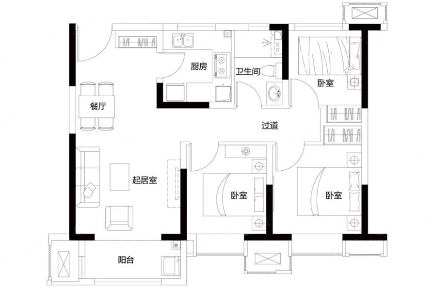
【混搭风格户型图】新房装修半包装修

【客厅混搭风格设计效果图】新房装修半包装修

新房装修半包装修

【卧室混搭风格设计效果图】新房装修半包装修

【儿童房混搭风格设计效果图】新房装修半包装修

新房装修半包装修

公司名称:天津市esball装饰工程有限公司

公司所在地:天津市南开区长江道55号清新大厦3层esball装饰

手机:18602295664

相关推荐:新房装修半包装修案例

评论阅读

用户的热门评论

  • 验证码
热门推荐案例 / Hot Recommended Cases
南开府141㎡现代简约风格装修
南开府141㎡现代简约风格装修

小区:南开府面积:141㎡设计师:王迪

王迪

王迪 主案设计师

找TA设计

格调平园123㎡现代简约风格装修
格调平园123㎡现代简约风格装修

小区:格调平园面积:123㎡设计师:吴利敏

吴利敏

吴利敏

找TA设计

南开府145㎡现代简约风格装修
南开府145㎡现代简约风格装修

小区:南开府面积:145㎡设计师:赵财增

赵财增

赵财增 主案设计师

找TA设计